Schulbau Open Source

 · 
Montag Stiftung Jugend und Gesellschaft

Schule von morgen – neu gedacht

Entwicklung eines offenen Werkzeugkastens für zukunftsfähige Schulbauplanungen

2018-2023

LPH 2-9

Die Montag Stiftungen haben die Einführung einer Programmphase, der so genannten „Phase Null“, im Schulbau initiiert und zu einem eingeführten Planungstool entwickelt. Wir sind, in Person von Raphaella Burhenne, die ein eigenes Team in unserem Büro zu dieser Beratungsleistung leitet, von den Montag Stiftungen zertifizierte Schulbauberater. Eine sorgfältig geplante Phase Null garantiert jedoch noch kein pädagogisch innovatives und architektonisch anspruchsvolles Schulgebäude. An dieser Stelle setzt das Projekt SCHULBAU OPEN SOURCE an.

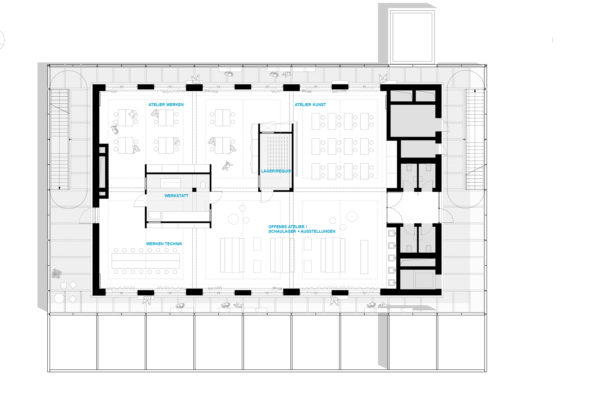
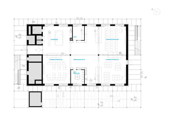
Das Projekt bündelt integriertes Planungs- und Prozesswissen im Schulbau anhand einer Musterplanung eines Referenzgebäudes und stellt dieses allen Akteur/innen zur Verfügung, um schneller und gleichzeitig mit hoher Qualität den komplexen Planungsanforderungen im Schulbau gerecht zu werden. Das Produkt wird nicht als starre Kopiervorlage verstanden, sondern ist offen und flexibel in seiner Weiterentwicklung. Im Gegensatz zum üblichen Konkurrenzdenken ermöglicht es eine Aggregation von Know-how im Sinne von „Crowd Thinking“. Im Ergebnis zeigt die Planung, dass auf Grundlage eines addierbaren Raummoduls von ca. 8x8m, eines Sanitär- und Technikkerns von ca. 4x16m und einer umlaufenden Außenraumschicht, die sowohl Fluchtwege als auch Lernraumerweiterungen im Außenbereich aufnimmt, ein leistungsfähiger wandlungsfähiger und gering technisierter Schulraum für einen modernen pädagogischen Lehransatz entsteht. Dass Räume entstanden sind, die genauso gut auch dem Wunschbild Vieler an einen Wohn- und/oder Arbeitsort entsprechen war nicht Ziel der Raumfindung, zeigt jedoch, wie sehr schulisches Lernen sich heute (richtigerweise) den Orten des Lebens annähert. Der Klassenraum ganzer Schulgenerationen, der seine Prägung in der militaristisch geprägten wilhelminischen Kaiserzeit hat, hat endgültig ausgedient!

Partner, Träger und Planungsbeteiligte

MontagStiftungJugend und Gesellschaft, IBAThüringen, StadtverwaltungWeimar, Schulgemeinschaft der Staatlichen Gemeinschaftsschule Weimar, gernot schulz:architektur GmbH, Köln, Hausmann Architekten, Aachen, Walter Heilmann Schulbauberatung, Köln, Studio Urbane Landschaften, Hamburg, IB Hausladen, München, Ingenieurbüro Fruth, Grässner & Partner, IBC Ingenieurbau-Consult GmbH, Ingenieurbüro Matthias Münz, Weimar, Hoock & Partner Sachverständige Part GmbH, Eckmann & Rowley, Bonn

Entwurf

Prof. Gernot Schulz, Rahaella Burhenne de Cayres und André Zweering auf Grundlage einer Programm- und Machbarkeitsstudie sowie Teilleistungen der Lph 2 von Hausmann Architekten GmbH Aachen mit IB Hausladen München für die Low-Tech TGA-Planung

Projektleitung

Raphaella Burhenne de Cayres, Niklas Menn

Mitarbeitende

Lukas Pauw, Elena Kasnatschejew, Eva Girzalsky, Sarah Klöpping, Felix Mayer, Lara Fieguth, Sebastian Natge, Dorle Zweering, Sarah Wolter, Beate Groß, Andrea Zoll

Fotos Visualisierungen

Fotos: Stefan Schilling

Aussen/Innenvisualisierung: PONNIE Images

Fassade: gernot schulz : architektur GmbH

Skizze: Studio Urbane Landschaften

Piktogramm: IBA Thüringen

Ähnliche Projekte

Wir freuen uns darauf, von Ihrem Projekt
zu erfahren und Sie zu beraten.

+49 (0)221 940 80 50
hallo@gernotschulzarchitektur.de

Folgen Sie uns auf Instagram

Vernetzen über LinkedIn