Universitätsbibliothek Siegen

 · 
Universität Siegen

Vom Kaufhaus zur Bibliothek

Umau eines ehemaligen Kaufhauses zu einer Universitätsbibliothek

2023

Das Konzept für die Teilbibliothek der Universität Siegen fokussiert sich auf den Erhalt der Kernstruktur des ehemaligen Hettlage-Gebäudes, um Ressourcen zu schonen und das Bau- sowie Planungsrisiko zu minimieren. Der Neubau wird terrassiert und kubisch gegliedert, um sich harmonisch in die kleinteilige Struktur der Nachbarbebauung einzufügen, während er durch eine kraftvolle, moderne Architektur eine ikonische Visitenkarte der Universität darstellt.

Ein transparentes, zurückgesetztes Brückenbauwerk über die Siegbergstraße stärkt die Wegeführung zum Campus Nord. Gleichzeitig ermöglicht ein barrierefreier öffentlicher Durchgang eine Verbindung zwischen den verschiedenen Stadtniveaus, wobei Sicherheitsmaßnahmen eine ungewollte Nutzung außerhalb der Bibliothekszeiten verhindern. Der Haupteingang ist klar definiert und orientiert sich zum Unteren Schloss.

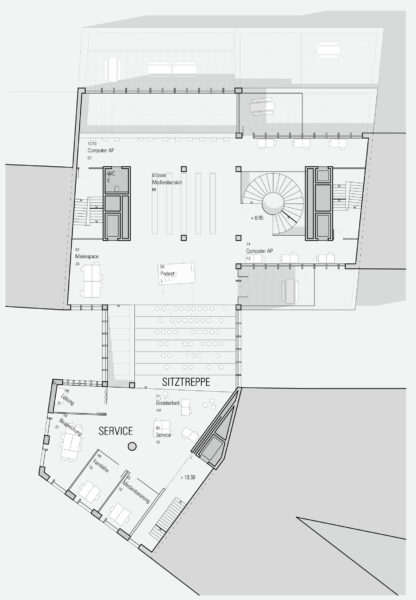
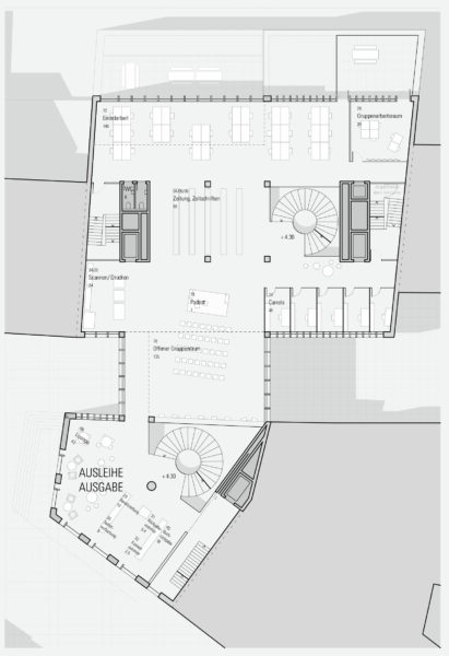
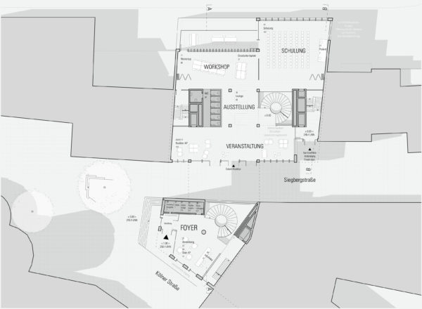
Das Bibliothekskonzept setzt auf funktionale Nutzungsschichten: Service- und Verwaltungsbereiche befinden sich hinter der bestehenden Fassade des Altbaus, während die Haupterschließung über großzügige Wendeltreppen erfolgt. Die Buchstellflächen sind so angeordnet, dass sie als Geräuschfilter zwischen ruhigen Arbeitsbereichen zur Friedrichstraße und lebendigeren Nutzungszonen fungieren. Hochfrequentierte Bücher befinden sich in oberen Geschossen, um Laufwege zu optimieren. Ein flexibler Seminar- und Ausstellungsbereich im Erdgeschoss des Neubaus dient als Schnittstelle zur Stadt und kann unabhängig von der Bibliothek genutzt werden.

Nachhaltigkeit spielt eine zentrale Rolle: Die Bibliothek setzt auf eine robuste Primärstruktur aus Recyclingbeton sowie auf regional verfügbare Materialien wie Sandstein und Holz. Natürliche Lüftungskonzepte, begrünte Terrassen zur Mikroklima-Verbesserung und eine weitgehende Vermeidung technischer Überladung reduzieren Energieverbrauch und Wartungsaufwand. Die Tragkonstruktion des Neubaus wird mit modular vorgefertigten Bauelementen umgesetzt, um Bauzeit und Emissionen zu minimieren.

Das Gesamtkonzept verbindet nachhaltige Bauweise, funktionale Klarheit und moderne Architektur zu einer repräsentativen, zukunftsorientierten Universitätsbibliothek, die sowohl städtebaulich als auch in ihrer Nutzung optimal auf den Standort Siegen zugeschnitten ist.

Entwurf

Prof. Gernot Schulz
André Zweering

Mitarbeiter

Jonas Lenkewitz

Visualisierungen

Interstitial

Ähnliche Projekte

Wir freuen uns darauf, von Ihrem Projekt
zu erfahren und Sie zu beraten.

+49 (0)221 940 80 50
hallo@gernotschulzarchitektur.de

Folgen Sie uns auf Instagram

Vernetzen über LinkedIn