Servicegebäude Herzog August Bibliothek

 · 
Staatliches Baumanagement Braunschweig
Realisierungswettbewerb

Ein würdiger Rahmen

Neubau eines Servicegebäudes für die Herzog August Bibliothek

2021

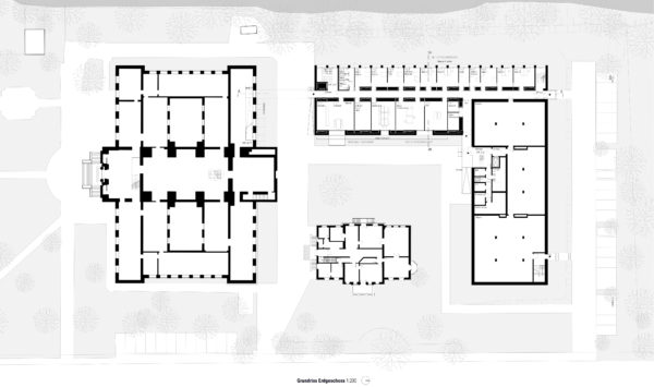
Die Herzog August Bibliothek in Wolfenbüttel ist ein Stück nationales Kulturgut. Entsprechend hoch sind die Anforderungen an Schutz der Bücher, hohe Funktionalität der Abläufe und Räume sowie einer baulichen Haltung gegenüber dem historischen Ensemble aus Lessinghaus, Direktorenhaus und dem Hauptgebäude der Bibliothek. Mit der Idee des „Zentrum Altes Buch“ wird eine funktionale Einheit angestrebt innerhalb des bestehenden Wolfenbütteler Bibliotheksquartiers. Den Ideen „Zentrum“ und „Quartier“ wollen wir mit dem vorliegenden Entwurf einen würdigen architektonischen Rahmen verleihen. Das bestehende neuzeitliche Archivgebäude wird durch einen angebauten Riegel so ergänzt, dass :

–  ein Innenhof von maximal möglicher Größe entsteht, der Besuchern und Mitarbeitern als Treffpunkt dient.

–  die baulich betonten Gebäudemitten der Bibliothek und des Direktorenhauses freigestellt und visuell denkmalkonservatorisch wahrnehmbar bleiben.

–  die neuzeitlichen Ergänzungen Archiv und Servicegebäude gemeinsam dem historischen Ensemble als würdiger Rahmen der freistehenden historischen Gebäude dienen.

–  die funktionalen Wege für die Mitarbeiter kurz und barrierefrei und für die Bücher sicher sind.

–  Gestalterisch nicht eine zusätzliche Architektursprache hinzugefügt wird, sondern Archiv- und Servicegebäude eine erkennbare Verwandtschaft aufweisen und sich gestalterisch gegenüber 
den historischen Gebäuden zurücknehmen ohne dabei belanglos zu sein.

Die Gebäudefigur ist somit vom verbleibendem Freiraum aus gedacht. Die Linearität des Gebäudes ermöglicht zudem sehr einfache geradlinige Wege für Bücherwagen und für den Großteil der Arbeitsräume einen Ausblick auf die Aue der Oker.

Entwurf

Prof. Gernot Schulz, André Zweering

Mitarbeiter

Jonas Lenkewitz

Visualisierungen

gs: a

Modell und Modellfotos

Modellwerkstatt, Dortmund

Das könnte Sie auch interessieren:

Wir freuen uns darauf, von Ihrem Projekt
zu erfahren und Sie zu beraten.

+49 (0)221 940 80 50
hallo@gernotschulzarchitektur.de

Folgen Sie uns auf Instagram

Vernetzen über LinkedIn