Rathaus Rodenkirchen

„Bürger Haus“ – ein Bezirksrathaus für Köln- Rodenkirchen

Neubau eines Bezirksrathauses für Köln- Rodenkirchen

2018

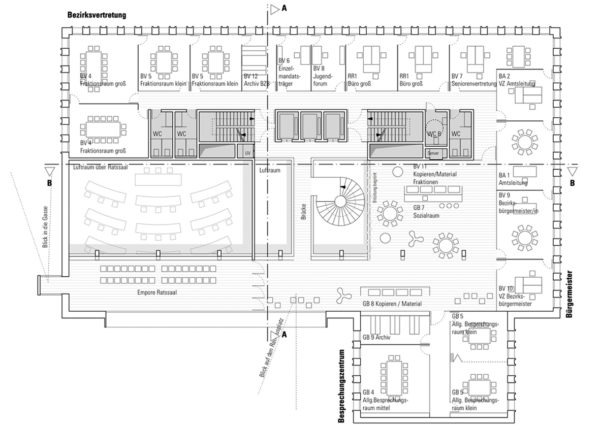
Die engen Vorgaben der Aufgabenstellung legen nahe, ein Haus mit vier unterschiedlichen Seiten und Kubatur-Staffelungen zu entwerfen. Dies widerspricht jedoch dem Typus eines Rathauses, welches städtebaulich traditionell und aufgrund seiner gesellschaftlichen Bedeutung einer Markanz und Eigenständigkeit bedarf.

Es wird daher eine Kubatur vorgeschlagen, die es auf einfachste Art und Weise ermöglicht, von den Bürgern als Rat- oder besser Bürgerhaus erkannt zu werden. Der Typus des dreigeschossigen Sockels mit mächtig aufstrebendem Dach ist in der Baugeschichte vielfach als Rathaus zu finden.

Der gefundene Typus wird zeitgenössisch weiterentwickelt, indem die traditionell zur Platzseite gelegenen erdgeschossigen Arkaden in großformatige Einschnitte übersetzt werden. Der große zentrale erdgeschossige Einschnitt in der Platzfassade richtet sich mittig auf den im Dialog mit dem Haus entworfenen „Platzteppich“ aus und führt den Besucher erst beim Näherkommen unter dem Fassadenüberstand trockenen Fusses zum Eingang/Windfang des Gebäudes. Die ehedem der Ratsherrenschaft vorbehaltenen Fenster eines Ratsaals im 1. Obergeschoss, der klassischen „bel étage“ eines Gebäudes, ist in Rodenkirchen der Besucherempore vorbehalten. Somit wird bildhaft die Beteiligung und Kontrolle der Politik durch die Bürger zum Ausdruck gebracht.

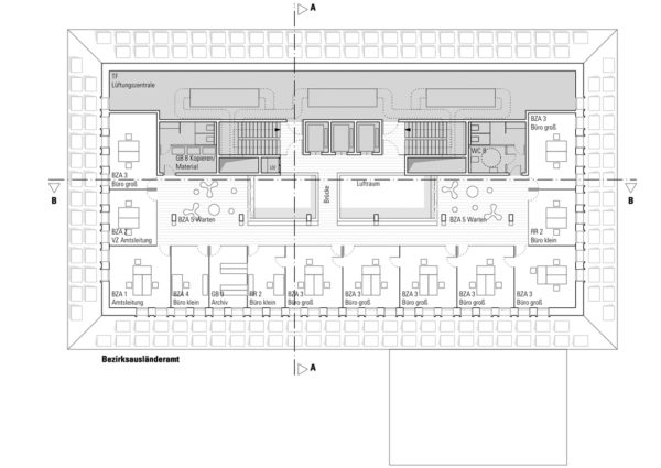
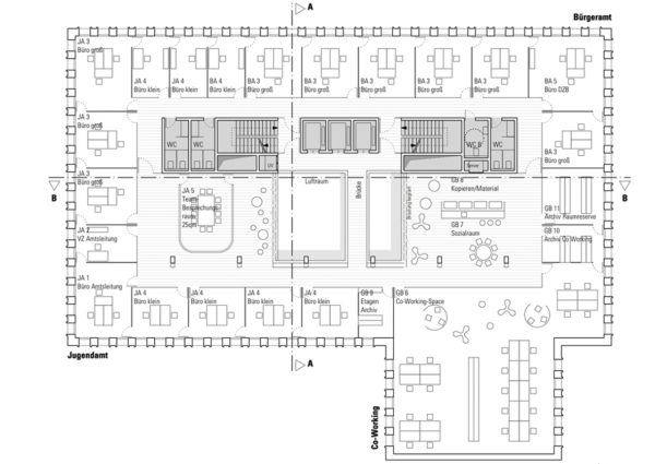
Auch im Inneren wird die Übersetzung des Typus fortgeführt. Die traditionell der Repräsentation dienende große Treppenhalle historischer Rathäuser wird beim vorliegenden Entwurf in eine über alle Geschosse führende Halle übersetzt, die es ermöglicht, schon beim Eintreten Einblick in alle Geschosse und Aktivitäten des Hauses zu erhalten.

Entwurf

Prof. Gernot Schulz, André Zweering

Mitarbeiter

Mirela Spasova

Visualisierungen

gernot schulz : architektur

Das könnte Sie auch interessieren:

Wir freuen uns darauf, von Ihrem Projekt
zu erfahren und Sie zu beraten.

+49 (0)221 940 80 50
hallo@gernotschulzarchitektur.de

Folgen Sie uns auf Instagram