Multi-Tenant-Gebäude Baufeld 63 Hafencity Hamburg

 · 
Patrizia AG,MSH Medical School Hamburg und der Freien Hansestadt Hamburg

Five Sides

Neubau eines Multi-Tenant-Gebäudes auf dem Baufeld 63 in der HafenCity Hamburg

2021

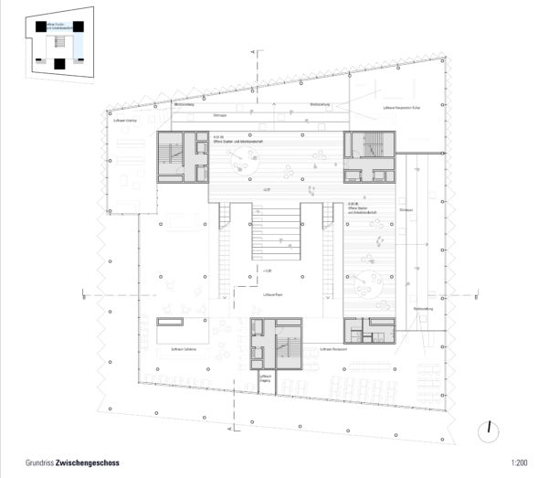
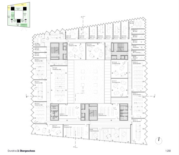
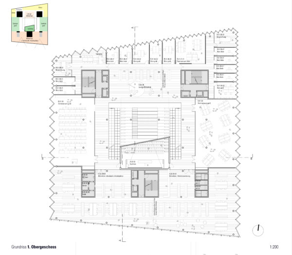
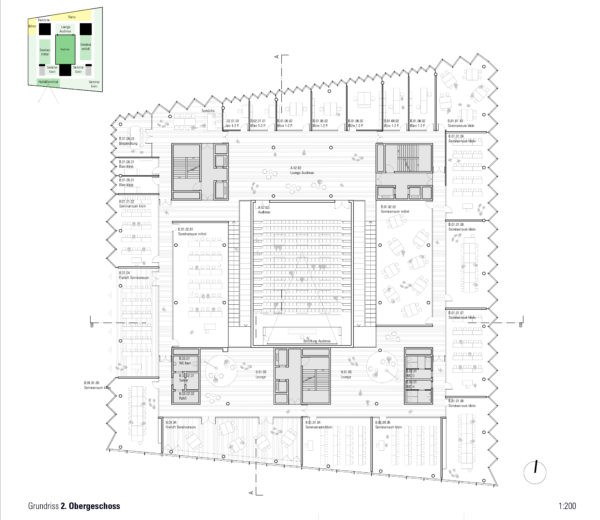
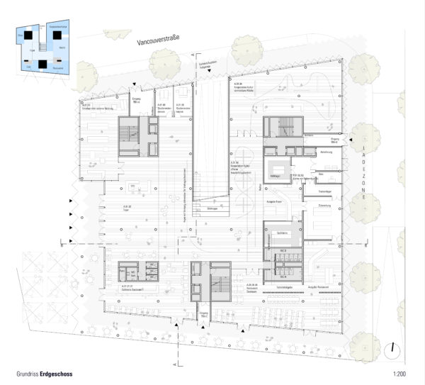
So wie es die Auslobung vorgibt, der programmatischen und aktiven Auseinandersetzung mit den gesellschaftlichen Zukunftsfragen aber auch der spezifischen Nutzung durch die MSH durch den Neubau auf dem Baufeld 63 in der Hamburger HafenCity ein Gesicht und eine Form von besonderer Strahlkraft zu geben, zielt der Entwurf mit seinem architektonischen Bild darauf ab, sich von einem standardisierten Bürobau zu unterscheiden und die „Multitenant“-Nutzung mit ihrer „Öffentlichkeitsstaffelung“ von unten nach oben lesbar zu machen. Eine dem öffentlichen Raum zugewandte innovative und inspirierende Lern- und Arbeitswelt entsteht. Die Nachhaltigkeitsaspekte des Gebäudeentwurfs sind „lesbar“, drängen sich aber nicht in den Vordergrund.

Entwurf

Prof. Gernot Schulz, André Zweering

Mitarbeiter

Jonas Lenkewitz, Lisa Küpper

Visualisierungen

PONNIE Images

Modell und Modellfotos

Modellwerkstatt, Dortmund

Planungsbeteiligte

sehw architektur, Hamburg

Das könnte Sie auch interessieren:

Wir freuen uns darauf, von Ihrem Projekt
zu erfahren und Sie zu beraten.

+49 (0)221 940 80 50
hallo@gernotschulzarchitektur.de

Folgen Sie uns auf Instagram

Vernetzen über LinkedIn