Town Hall Langenhagen

 · 
Stadt Langenhagen

1 + 1 = 1

The Oesterle building and its extension become a public house

2020

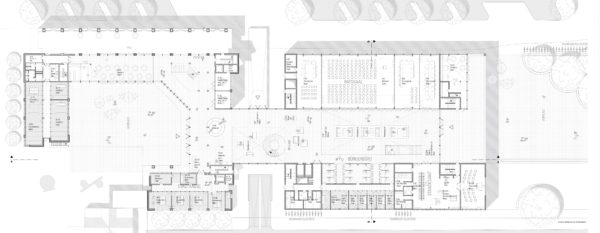
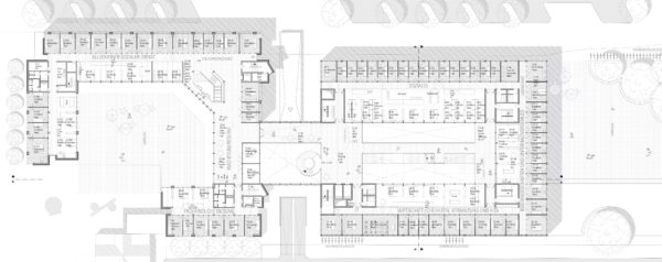
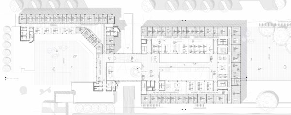
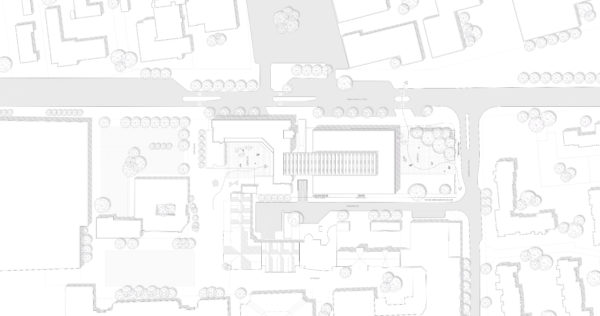
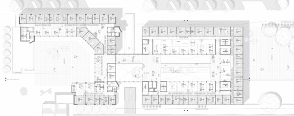
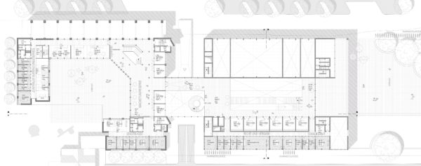
A new eastern square and entrance is in dialogue with the current square and entrance from the market square to the west, which has been strengthened by this design. The two access routes are brought together in an inner communication hall. A further entrance and exit to the north in the joint between the existing and new buildings enables citizens to use the town hall as a ‘desired public’ route to or from the Stadtpark to the north.

The communication hall stands for a new kind of dialogue between employees, but also between employees and citizens. The town hall of the future is more of a service centre than an administrative office and is also the ‘parlour’ of the town.

The communication hall initially facilitates orientation and enables short distances. There is no ‘down, over, up’, but each destination can be accessed from the hall, first vertically and then horizontally via a short route. The stairs, walkways and platforms in the hall enable encounters and direct but also visual communication across the floors. In future, employees who currently work in different parts of the city will often be able to see and meet each other, or arrange meetings at the tea kitchens in the hall or in the two cafés in the two squares to the east and west.

The ground floor of the communication hall is primarily intended for citizens and their encounters with ‘their’ town hall. The waiting area of the citizens’ office enlivens the hall on weekdays. Reading offers, exhibitions and the option of shortening the waiting time in the cafés create a ‘town hall square’ in the hall that is close to the citizens. Opposite the citizens’ office are the two-storey halls and the council chamber. City councillors and citizens meet on the ground floor and thus ‘at eye level’. The councillors can reach the parliamentary group rooms on the mezzanine floor of the new building via a short route.

All rooms can be combined with the hall to form one large room area. What options there are here! Exhibitions, city festivals, concerts and much more is conceivable and will give the town hall a new perception among the citizens

Draft

Prof. Gernot Schulz, André Zweering

Contributors

Lukas Pauw, Elena Kasnatschejew

Visualisations

PONNIE Images

Model and model photos

Modellwerkstatt, Dortmund

This might also interest you:

We look forward to hearing about your project
and to advise you.

+49 221 940 80 50
hello@gernotschulzarchitektur.de

Follow us on Instagram

Networking via LinkedIn