La aldea del aprendizaje

 · 
Landkreis Hameln - Pyrmont
Concurso interdisciplinar no abierto de realización 1er puesto

Concepto de urbanismo

2022

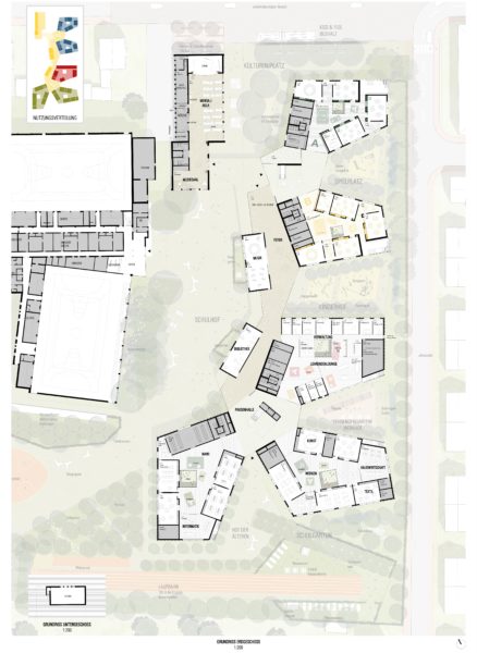
La fusión de la antigua escuela primaria Johann Comenius y la escuela secundaria Emmerthal en un nuevo centro educativo se basa en el concepto de aldea del aprendizaje. La nueva aldea del aprendizaje se ubicará en el emplazamiento del antiguo HRS, mientras que el solar de la antigua escuela primaria, al norte de la Neue Straße, quedará libre y podrá utilizarse para otros fines. El concepto especial de casa de aprendizaje se refleja estructuralmente, con cinco casas de aprendizaje pentagonales agrupadas en torno a un patio escolar central, incluido el Kultur(n)halle. Las casas de aprendizaje para la escuela primaria están situadas en la parte norte del solar, las casas de aprendizaje HRS en la parte sur. La figura del edificio se complementa con escaleras centrales para la escuela primaria y el HRS, así como un enlace de conexión de una sola planta que da al patio de la escuela. Al norte, la colocación de los edificios se dirige al centro escolar con la Kultur(n)platz hacia la Neue Strasse. La apertura de las fachadas de la Kultur(n)halle a la plaza permite diversas opciones de utilización para la comunidad escolar, pero también para la comunidad local. A lo largo de la Jahnstrasse, el diseño retoma la escala de la urbanización residencial de enfrente mediante la disposición de los edificios alternando con patios verdes.

 

Borrador

Prof. Gernot Schulz y André Zweering

Contribuyentes

Jonas Lenkewitz, Lisa Küpper

Landschaftsarchitekten

urbanegestalt

Visualizaciones

gernot schulz : architektur GmbH

También te puede gustar esto

Estamos deseando conocer
su proyecto y asesorarle.

+49 221 940 80 50
hola@gernotschulzarchitektur.de

Síguenos en Instagram

Redes a través de LinkedIn