Conjunto de carboneras

 · 
Stadt Gelsenkirchen
Concurso de ingeniería estructural según RPW 2013 1er puesto

Greentower – Puente energético – Granja vertical

Concepto

2022

El concepto ya desarrollado para el conjunto de la carbonera en Nordsternpark se desarrollará aún más hasta convertirse en un proyecto emblemático en términos de cultura de la construcción, sociedad, ecología y arquitectura. Al mismo tiempo, por razones de viabilidad, viabilidad económica y los mensajes que deben transmitirse y la función de modelo del proyecto, la atención se centra en unas pocas intervenciones claras:

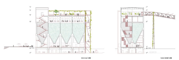
Greentower:

La antigua carbonera se ampliará estructuralmente mediante una estructura de andamiaje en el oeste y en el tejado. En el sur, se construirá una ampliación para el ascensor de pasajeros en una huella ligeramente superior a la caja de escalera existente. De este modo se mantiene la forma estructural del edificio existente. La estructura de andamiaje alberga las funciones de escalera (2ª vía de evacuación) y montacargas, y también proporciona el marco para la realización y presentación ejemplar de las diversas opciones de ecologización de la fachada, incluido el potencial de sombreado del tejado verde para la terraza de la azotea. La fachada sur se plantará con enredaderas silvestres, de modo que con los años se desarrollará una fachada verde que cambiará de color con las estaciones. Incluso desde lejos, el conjunto de la construcción verde transmite el mensaje del «invernadero» a los curiosos que se acercan.

Puente energético (antiguo puente transportador de carbón)

Se propone retirar los revestimientos de ladrillo del puente de cinta y dejar al descubierto la pasarela de rejilla. El objetivo es permitir el acceso opcional al puente a particulares o grupos registrados, posiblemente en ocasiones especiales. El tema del viejo y el nuevo camino de la energía a través del puente se visualizará mediante una instalación artística de luz. En las barandillas del puente se colocarán jardineras con hierbas y otras plantas resistentes para abastecer el servicio de restauración. Las plantas trepadoras rodearán la estructura por los grandes soportes.

Granja vertical (antigua planta mezcladora de carbón)

La idea del uso hortícola previsto del edificio se materializará arquitectónicamente, con un acceso sin barreras al edificio desde la altiplanicie existente. Aquí se instalará una planta central de información y exposición, desde la que los visitantes tendrán la opción de pasear por el puente de la energía. Sin embargo, todos podrán ver el puente a través de la gran abertura acristalada de la Greentower, lo que les permitirá experimentar visualmente el ciclo de la energía. Los pisos superiores se destinarán a la jardinería exploratoria de interior y exterior.

Borrador

Prof. Gernot Schulz y André Zweering

Contribuyentes

Lisa Küpper, Jonas Lenkewitz, Immo Alf, Elena Kasnatschejew

Landschaftsarchitekten

urbanegestalt

Visualizaciones

interstitial

También te puede gustar esto

Estamos deseando conocer
su proyecto y asesorarle.

+49 221 940 80 50
hola@gernotschulzarchitektur.de

Síguenos en Instagram

Redes a través de LinkedIn