Am Breiten Luch

 · 
HOWOGE Wohnungsbaugesellschaft mbH

Learning workshop in the green corridor

New integrated secondary school ‘Am Breiten Luch’

2020

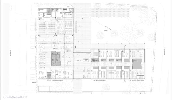
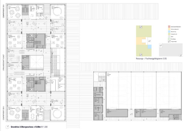
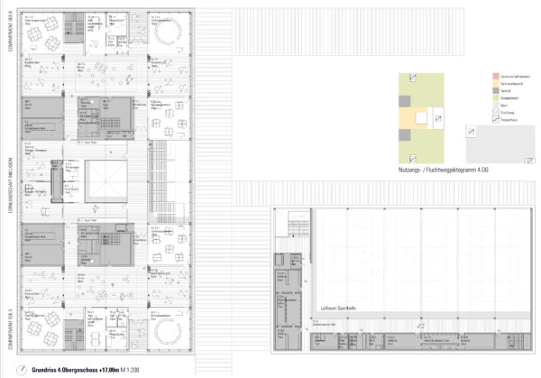
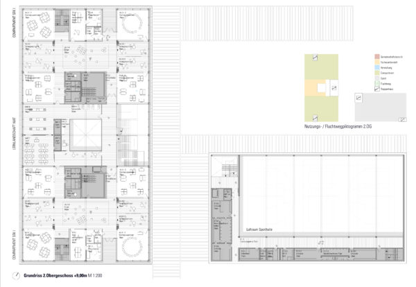
The guiding principle of our design is a school building that radiates a great deal of airiness and brightness, despite the economically required compactness, and is thus more perceptible as a pavilion/workshop than as a building in terms of urban planning/architecture and also conveys the open ‘new spirit’ of learning together and from each other in compartments.

The unusual verticality and compactness of the school is countered with architectural elements that promote communication within the school community (cascading staircase) and contrast the depth of the floor plans with open structures (atrium, façade depth, pergolas in the outdoor area).

The division into two structures and their different façade materials (wood as the front structure for the school building, metal as the front structure for the sports hall) aligns the new buildings with the green corridor along Wartenberger Strasse with its school and sports buildings, which are lower in proportion to the prefabricated buildings. In support of this, it is planned that the front façade structures will be planted/covered with greenery over time and can be used by the school community with teaching materials (plants, posters, etc.).

Draft

Prof. Gernot Schulz, André Zweering

Contributors

Dorle Zweering

Visualisations

gernot schulz : architektur

Model and model photos

Modellwerkstatt, Dortmund

Planning partner

sehw architektur, Berlin

Topotek1, Berlin

GTB – Berlin Gesellschaft für Technik am Bau

Müller BBM GmbH, Berlin

This might also interest you:

We look forward to hearing about your project
and to advise you.

+49 221 940 80 50
hello@gernotschulzarchitektur.de

Follow us on Instagram

Networking via LinkedIn